轻而不浮,奢而不俗
打造富有格调的宜居美家
”
坐标 | 贵州·遵义
项目名称 丨 天然与设计的匠心共筑
项目类型 丨 四层独栋别墅
项目面积 丨 600+㎡
服务内容 丨 整案空间设计、全屋固装高定、配套家具落地
设计风格 丨 现代轻奢风格
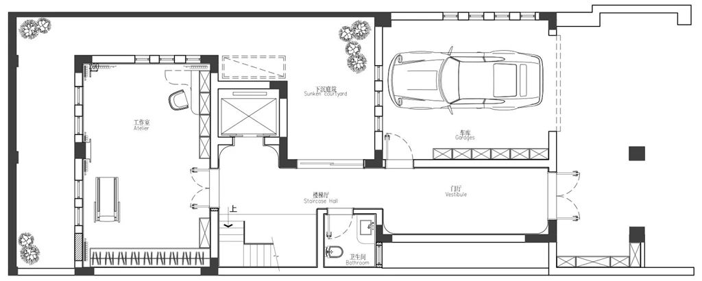
1F 意式美学 动感空间

△1F平面图
打开归家的门
曲径通幽
灰色卷纹有影枫木饰面
通铺全屋墙面
光影变幻的天然木纹肌理
在莹润通透的漆膜下
营造与生俱来的内敛质感
掩上门后
拂去身后的浮躁与喧嚣


旋转楼梯蜿蜒盘旋
玻璃扶手宛若银河,
连接不同层级
拾阶而上
每一步都有华光作伴
以光为媒,欢迎归家的脚步

张弛有度才是生活的常态
家中多功能体验区尤为重要
设计专属的健身娱乐区
居家健身娱乐两不误
动静两相宜
增加家人之间的互动

△效果图
素雅色调平衡艺术美感
多材质打造低调质感空间
近距离体会生活魅力



△实景图
2F 光影变幻 魅力绽放

△2F平面图

丰盈、气质、轻奢
空间处处弥漫着优雅
目光所及皆是雅奢滋味
挑空楼层开阔又通透
软硬装巧妙跳色
灵动又活跃
犹如一曲曲悦耳的音符

整体流畅的线条
钢琴漆莹润亮光的质感
静静铺展开时间的诗意
高雅、深邃、宁静
让自然装点美居


挑空楼层设计把空间打开
大面积玻璃窗引入自然光线
内外呼应,自由呼吸
增添空间的层次及氛围
客厅的光影时刻变幻
绽放不一样的魅力

一体化的餐厅设计
加强空间通透感
带有现代轻奢质感的定制高柜
实现生活的便利及美观
整体空间和谐优雅


整洁素净的厨房空间
呈现着质感和肌理的衔接
隐藏式的茶玻木门
跳脱传统风格
赋予更多的灵活性及开放性

电梯间一体化布局
染色有影木皮饰面流露出质感的效果
营造精致的交织光影
沐浴岁月中,尽显自然纯粹

3F 简约节奏 朴素留白

△3F平面图

△效果图

△实景图
大面积浅灰硬包饰面板
呈现出极简生活美学的留白意境
定制床头屏暗藏光影
充满设计趣味

△效果图


△实景图
精心定制木作书柜
打造书香宁静的闲适空间
木作与玻璃窗有序间隔
引入丰富柔和的光影
开阔空间视野
展现起伏流动的节奏魅力


以石纹瓷砖作画
赋予私人空间的别样氛围
自然色系整体通铺,让空间更加明亮
灵活多样功能,享受轻松时刻

△效果图

△实景图
在一眼望穿的过厅画面里
找寻节奏与韵律的美感
温和的米色和自然木饰面浑然一体
蕴含平衡、宁静之美

染色卷纹有影枫木皮质地坚硬、韧性佳
大面积的亮光影木让空间简单大气
优良的拼接工艺
让真正的奢华隐藏于细腻的纹理当中

水吧间浮动着迷人的光泽
玻璃、开放与柜门的三段式设计
让小小的空间富有层次感
又兼具收纳与实操功能
让设计回归生活
4F 身心向阳 典藏雅奢

△4F平面图

△效果图


△实景图
米白色调软包与影木木饰面组成对称主背景
显露干净简洁的色泽与肌理
与墙面、地板互相共鸣
汇成生活的真实感受
活跃中又有协调
当灯光洒落,现代与轻奢交融

卧室过厅大面积使用木皮饰面
作为自然原木色调
满足业主对原木空间的想象
带来恬静优雅的氛围

△效果图


△实景图
专属定制衣帽间
让有限空间实现双倍功能效果
雅白门板与茶玻搭配
制造空间层次感
让气氛静谧且温馨
将现代艺术与日常生活完美融合
营造出高级优雅的气息

纵观卫生间的多种功能
延续独特的装饰主义魅力
巧妙地平衡轻奢优雅和时尚大气
将山水之间的纯粹灵动充分展现
赋予空间专属的灵动气质
^^^^^^^^^^^^^^^^^^^^^^^
天然与设计,匠心共筑,
静看繁杂世界,奢享从容人生。
上一篇:卡芬达家居丨生活与艺术交织,简境致美
下一篇:卡芬达家居丨东方美学,现代演绎